Freehold Commercial Premise For Sale

Lot 1 @ 53 Beor Street located within the Port Douglas’ Business Park at Craiglie.

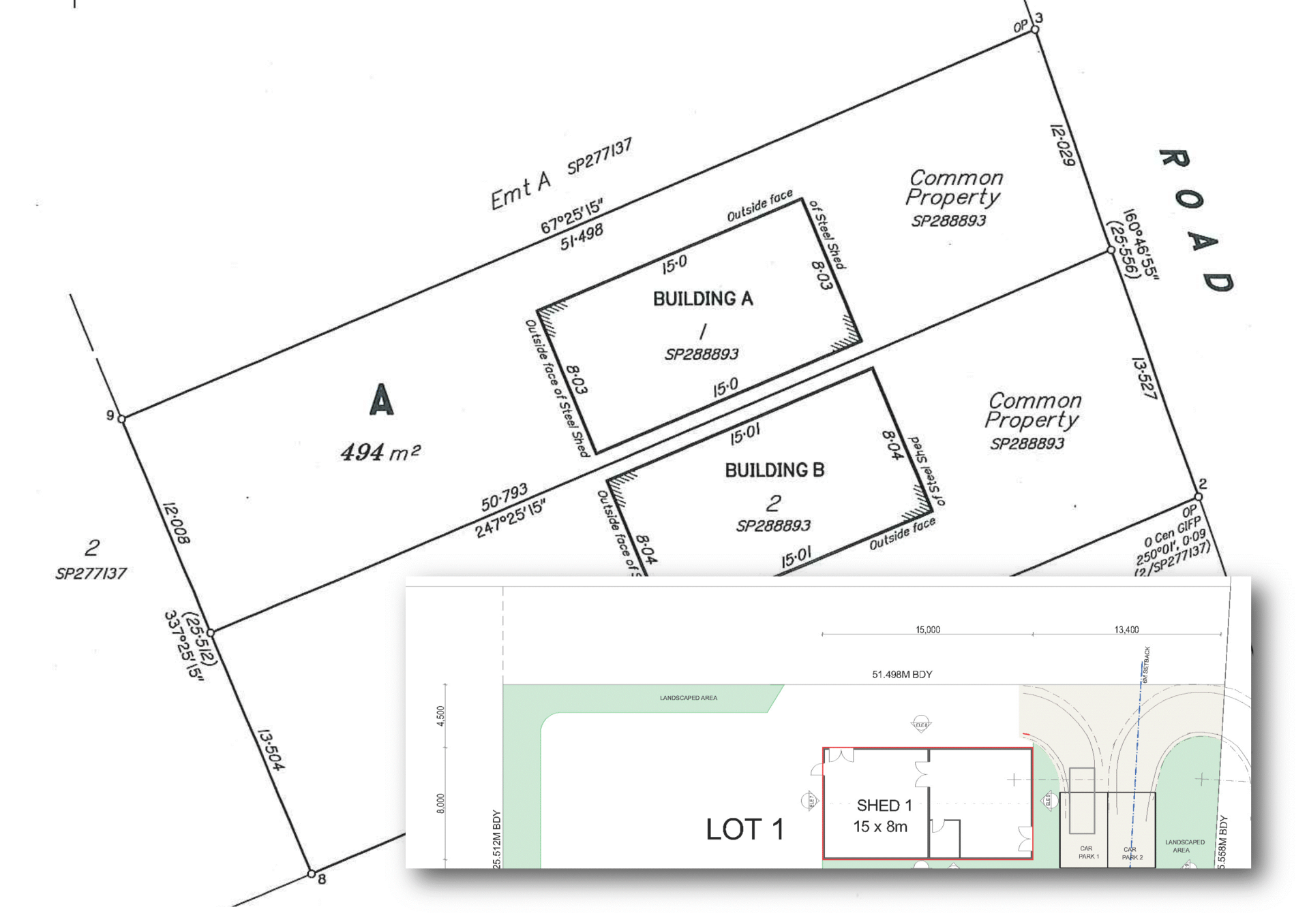
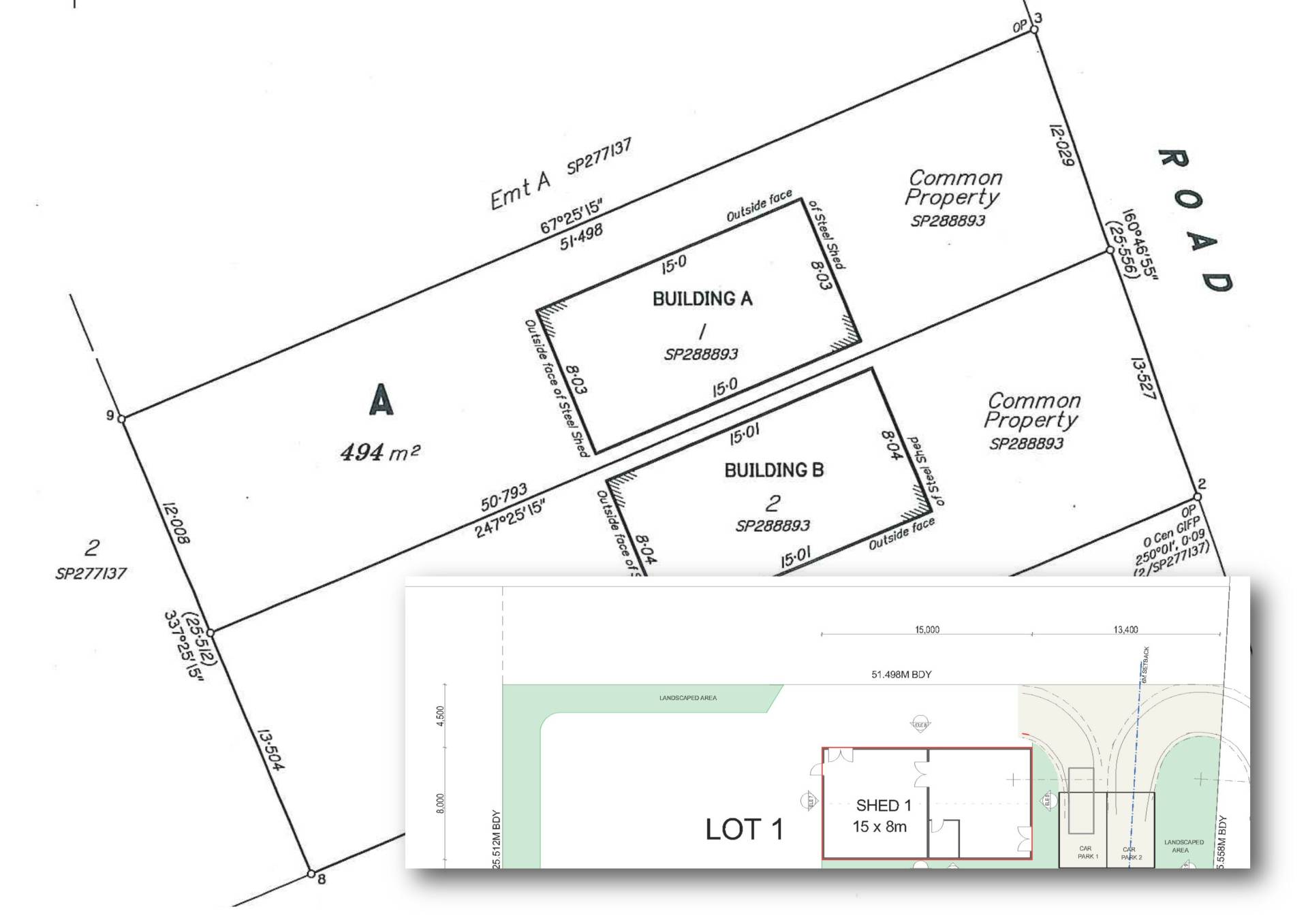
A purpose built commercial space of 117m2 in size. The Shed is approximately 15 metres long x 8 metres wide.

Designed in two halves providing good separation between possible retail at the front and back of house operations to the rear.

Both front and rear are air-conditioned and lined with insulation and plaster walls. There is a rear/side glass entry access in addition to a glass front double door from the parking area.

The exclusive use yard extends to the side and the rear of the shed and this area is a large 494m2. Fencing exists to the perimeter of the land (no dividing fence exists between shed 1 & 2).

Perfectly located for access with a wide street and cul-de-sac position. Good signage opportunities exist for your business.

A 6.4kw solar system is in place consisting of 24 solar panels. 3 phase power is available and goes to the shed. 

This is a chance to walk straight in and start operating. Vacant possession awaits.

Contact Callum Jones to get full details on 0437 981 195 or email callum@theagentportdouglas.com 

Address 1, 53 Beor St, Craiglie Business Park, Port Douglas
Price SOLD
Property Type Commercial
Property ID 795
Category Industrial/Warehouse
Warehouse Area 117m2

Agent Details

Callum Jones photo

Callum Jones

0437 981 195
View Profile